NEXT Wood 88W bedient den Wunsch nach einem modernen Haus mit einem „richtigen“ Dach. In gewachsene Wohngebiete fügt sich der schmucke Bungalow dank seines Walmdaches unauffällig ein. Trotzdem unterscheidet er sich mit seinen raumhohen Fenstern, der gläserner Wand und der zeitgemäßen Fassade optisch von seinen älteren Nachbarn – ganz zu schweigen vom seinem komfortablen Innenleben.
Der Zusatz „Wood“ im NEXT by Danwood-Hausprogramm kennzeichnet Modulhäuser, deren Rahmenkonstruktion vollständig aus Holz statt aus Stahl besteht.
*Abbildungen zeigen teilweise individuelle Zusatzausstattung.
Hausstandard NEXT
Vollständige Baubeschreibung und Materialspezifikation.

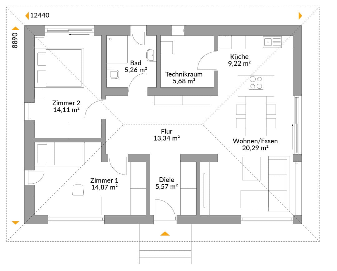
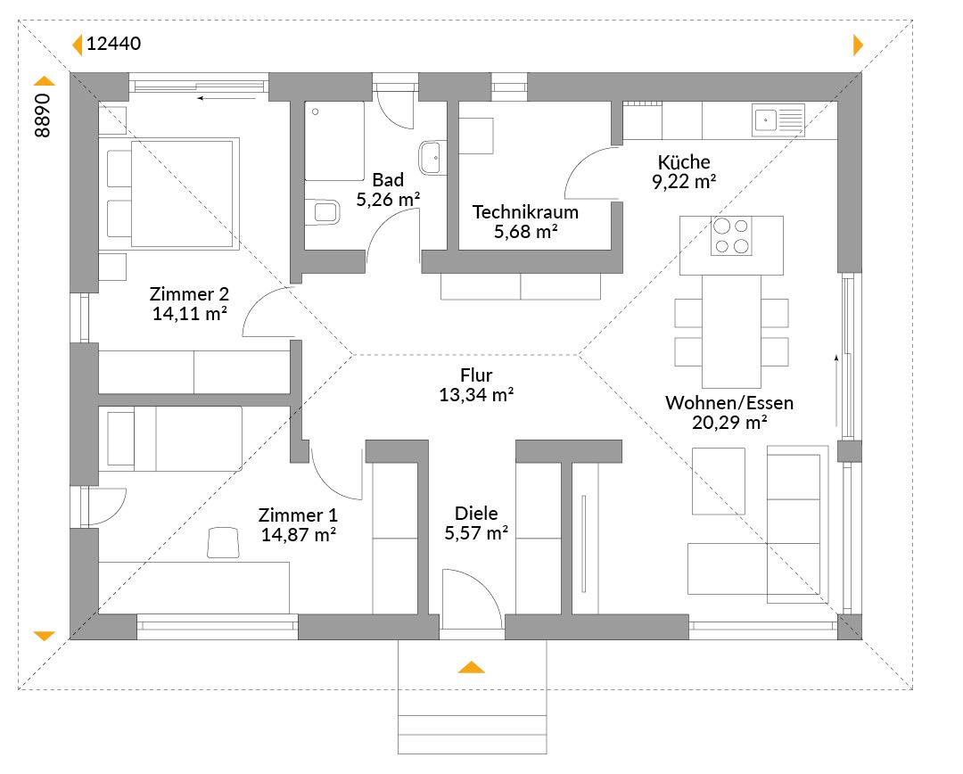
Grundrisse
Kompletter Plan aller Etagen mit Fläche
Das innovative Danwood-Modulbauprogramm bietet smarte schlüsselfertige Modulhäuser in moderner Architektur mit viel Glas, die komplett bis ins Detail im Werk vorgefertigt werden. Sie punkten mit kürzerer Lieferzeit und einer Aufbauzeit von drei Wochen. Ihr Alles-Inklusive-Konzept umfasst modernste Haustechnik, höchste Energieeffizienz und ausgesuchtes Innendesign.

Sogar fremde Leute haben uns im Ort angesprochen, wie schön unser Haus ist. Klar macht einen das stolz.